Central Park Tower La Tour Shinjuku 1721 ID: 24110

Available from Jun 01
Print

Rent ¥699,000 / month
Maintenance Fee ¥0 / month
Recontract Fee TBD / once
Deposit ¥1,398,000 / once
Key Money ¥0 / once
Agency Fee ¥768,900 / once
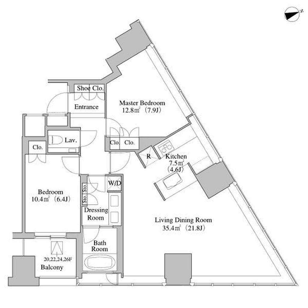
Floorplan Type 2LDK
Building Type Apartment
No. of Floors 44
Floor 17
Size (sq m) 87.39m2
Building Structure Steel Reinforced Concrete
Year 2010
No. of Units 842
Description High-rise apartment right in front of Shinjuku Chuo park. Shuttle bus service available from/to Shinjuku Station daily. Super market on the 1st floor available!
Pricing information Additional 1 month rent as security deposit to keep pet.
Building Autolock Concierge Delivery box Elevator Gym
Amenities Air Conditioner/Heater
Kitchen Dishwasher
Pets Pets (negotiable)
Nearby Train Station
  • Tochōmae Station 5 minutes by walk
  • Nishi-Shinjuku Station 5 minutes by walk
  • JR East Shinjuku Station 14 minutes by walk
Powered by Propertyline