La Tour Shibuya Jinnan 1602 ID: 27565

Available from Apr 04
Print

Rent ¥1,100,000 / month
Maintenance Fee ¥0 / month
Recontract Fee TBD / once
Deposit ¥0 / once
Key Money ¥0 / once
Agency Fee ¥1,210,000 / once
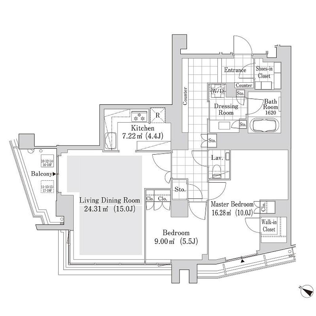
Floorplan Type 2LDK
Building Type Apartment
No. of Floors 22
Floor 16
Size (sq m) 90.7m2
Building Structure Reinforced Concrete
Year 2019
No. of Units 54
Pricing information Additional 1 month rent as security deposit to keep pet.
Building Autolock Concierge Delivery box Elevator
Interior/ Exterior Flooring
Pets Pets (negotiable)
Amenities Underfloor heating
Bath/ Toilet Washlet(shower toilet)
Nearby Train Station
  • Harajuku Station 8 minutes by walk
  • JR East Shibuya Station 10 minutes by walk
  • Yoyogi-Kōen Station 11 minutes by walk
Powered by Propertyline