| Rent | ¥150,000 / month |
|---|---|
| Maintenance Fee | ¥20,000 / month |
| Car Parking Fee | ¥27,500 / month |
|---|---|
| Deposit (nonrefundable) | ¥300,000 (¥300,000) / once |
| Key Money | ¥300,000 / once |
|---|---|
| Disinfection Fee | ¥26,400 / month |
| Agency Fee | ¥165,000 / once |
|---|
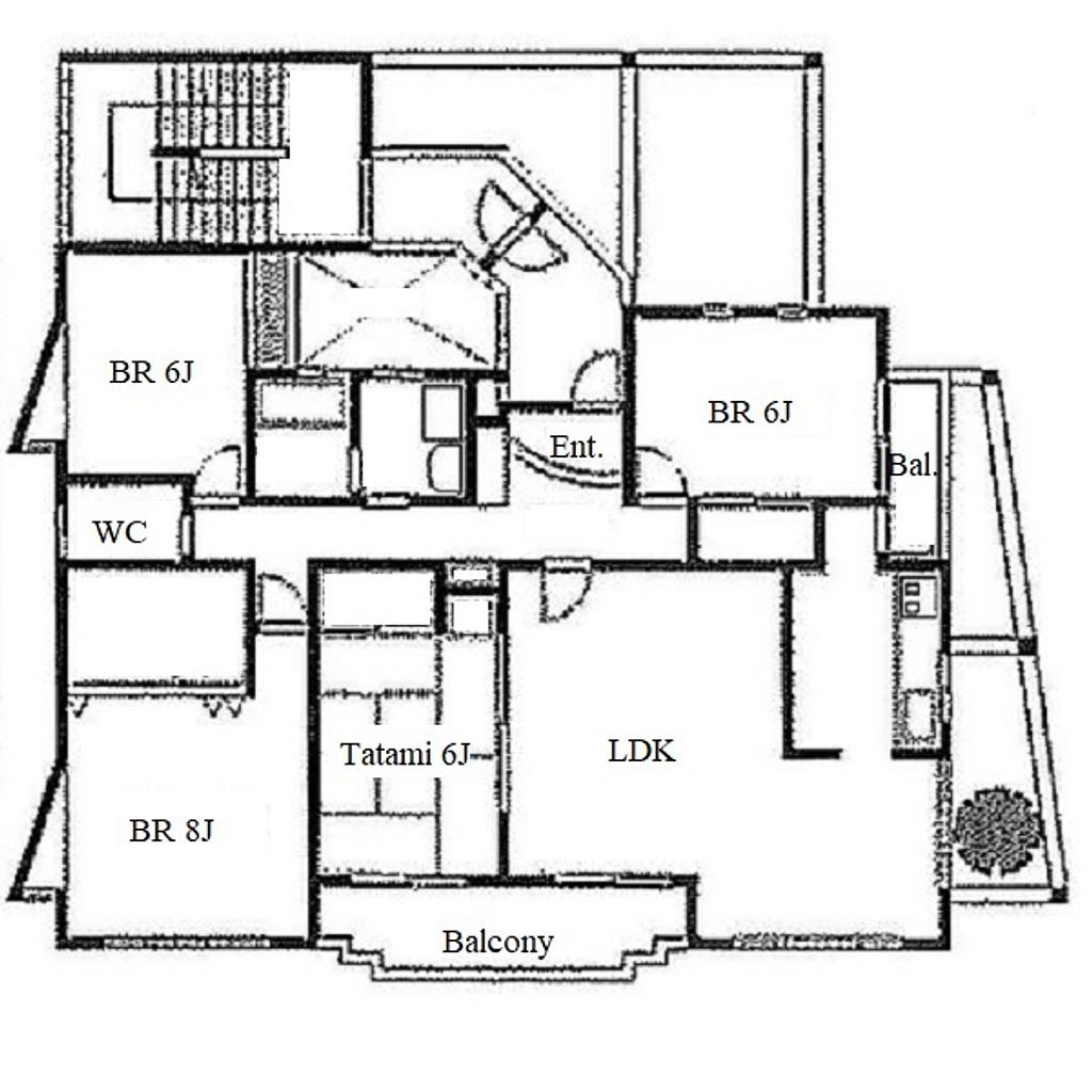
| Floorplan Type | 4LDK |
|---|---|
| Building Type | Apartment |
| No. of Floors | 3 |
| Floor | 2 |
| Size (sq m) | 102.79m2 |
|---|---|
| Building Structure | Reinforced Concrete |
| Year | 1992 |
| No. of Units | 3 |
| Building | Autolock |
|---|---|
| Amenities | Air Conditioner/Heater Cable Drapes Furnished Light fixtures |
| Bath/ Toilet | Bath/Toilet separated Washlet(shower toilet) |
| Direction | Facing south |
| Interior/ Exterior | Flooring Veranda/ Balcony |
| Pets | Pet (Large-sized dog) Pet (Middle-sized dog) Pet (Plural pets) Pets (negotiable) |
| Kitchen | System kitchen |
| Nearby Train Station |
|
|---|---|
| Nearby Places |
|