Toranomon Hills Residential Tower 3005 ID: 33096

Available from Jun 30
Print

Rent ¥1,590,000 / month
Maintenance Fee ¥0 / month
Recontract Fee TBD / once
Deposit ¥6,360,000 / once
Key Money ¥0 / once
Agency Fee ¥1,749,000 / once
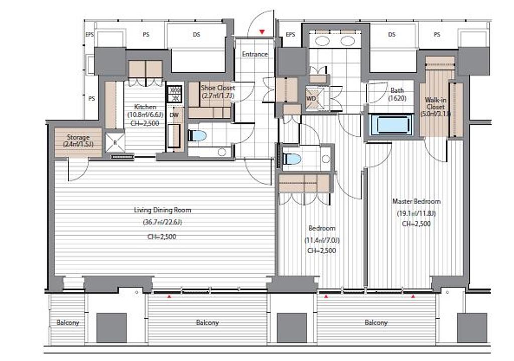
Floorplan Type 2LDK
Building Type Apartment
No. of Floors 54
Floor 30
Size (sq m) 121.51m2
Building Structure Reinforced Concrete
Year 2022
No. of Units 547
Building Autolock Concierge Elevator Gym Parking Swimming pool
Amenities Air Conditioner/Heater Underfloor heating Washer & Dryer
Bath/ Toilet Bath/Toilet separated Washlet(shower toilet)
Kitchen Dishwasher Oven Refrigerator System kitchen
Interior/ Exterior Flooring
Pets Pets (negotiable)
Nearby Train Station
  • Toranomon Hills Station 2 minutes by walk
  • Kamiyachō Station 7 minutes by walk
  • Toranomon Station 7 minutes by walk
Powered by Propertyline