GRAN PASEO Marunouchi 1104 ID: 37201

Print

Rent ¥236,000 / month
Maintenance Fee ¥15,000 / month
Deposit ¥0 / once
Key Money ¥0 / once
Initial Lock Replacement Fee ¥25,300 / once
Cleaning Fee ¥91,608 / once
Agency Fee ¥259,600 / once
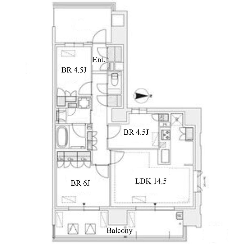
Floorplan Type 3LDK
Building Type Apartment
No. of Floors 15
Floor 11
Size (sq m) 69.4m2
Building Structure Reinforced Concrete
Year 2024
No. of Units 0
Building Autolock Delivery box Elevator
Amenities Air Conditioner/Heater Underfloor heating
Bath/ Toilet Bath/Toilet separated Washlet(shower toilet)
Kitchen Dishwasher System kitchen
Direction Facing east
Interior/ Exterior Flooring Veranda/ Balcony
Nearby Train Station
  • Marunouchi Station 6 minutes by walk
  • Hisaya-ōdōri Station 9 minutes by walk
Nearby Places
  • Convenience Store 7-Eleven 2 minutes by walk
  • Convenience Store FamilyMart 3 minutes by walk
Powered by Propertyline