| Rent | ¥800,000 / month |
|---|---|
| Maintenance Fee | ¥0 / month |
| Recontract Fee | TBD / once |
|---|---|
| Deposit | ¥3,200,000 / once |
| Key Money | ¥0 / once |
|---|---|
| Agency Fee | ¥880,000 / once |
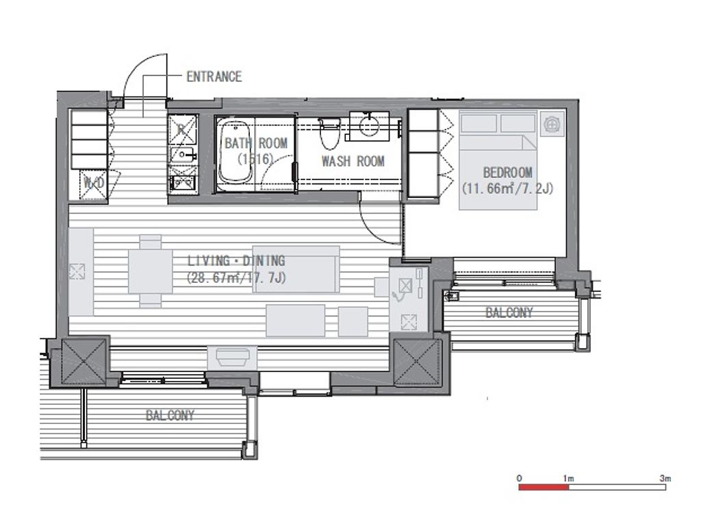
| Floorplan Type | 1LDK |
|---|---|
| Building Type | Apartment |
| No. of Floors | 18 |
| Floor | 11 |
| Size (sq m) | 54.16m2 |
|---|---|
| Building Structure | Reinforced Concrete |
| Year | 2003 |
| No. of Units | 0 |
| Unit description | Furnished. Service including breakfast, cleaning (once a week), gym. | ||
|---|---|---|---|
| Building | Autolock Delivery box Elevator Parking |
|---|---|
| Amenities | Air Conditioner/Heater Free internet connection Furnished Light fixtures Linen TV Washer & Dryer |
| Kitchen | Dishwasher Refrigerator |
| Nearby Train Station |
|
|---|