Toranomon Hills Residential Tower 1311 ID: 38126

Available from Aug 01
Print

Rent ¥730,000 / month
Maintenance Fee ¥0 / month
Recontract Fee TBD / once
Deposit ¥2,920,000 / once
Key Money ¥0 / once
Agency Fee ¥803,000 / once
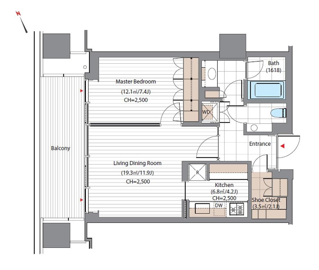
Floorplan Type 1LDK
Building Type Apartment
No. of Floors 54
Floor 13
Size (sq m) 60.23m2
Building Structure Reinforced Concrete
Year 2022
No. of Units 547
Building Autolock Concierge Elevator Gym Parking Swimming pool
Amenities Air Conditioner/Heater
Kitchen Dishwasher
Interior/ Exterior Flooring Veranda/ Balcony
Nearby Train Station
  • Toranomon Hills Station 2 minutes by walk
  • Kamiyachō Station 7 minutes by walk
  • Toranomon Station 7 minutes by walk
Powered by Propertyline