| Rent | ¥940,000 / month |
|---|---|
| Maintenance Fee | ¥0 / month |
| Recontract Fee | TBD / once |
|---|---|
| Deposit | ¥3,760,000 / once |
| Key Money | ¥0 / once |
|---|---|
| Agency Fee | ¥1,034,000 / once |
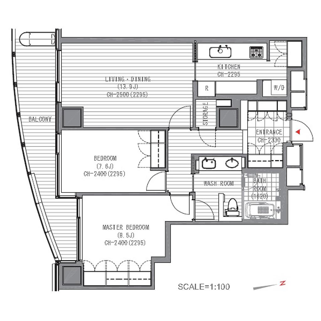
| Floorplan Type | 2LDK |
|---|---|
| Building Type | Apartment |
| No. of Floors | 42 |
| Floor | 26 |
| Size (sq m) | 90.1m2 |
|---|---|
| Building Structure | Steel Reinforced Concrete |
| Year | 2001 |
| No. of Units | 353 |
| Description | Very modern high-rise apartment with fitness gym and swimming pool on the top 42nd floor. | ||
|---|---|---|---|
| Unit description | Termination on 2/8. | ||
| Building | Autolock Concierge Delivery box Elevator Gym Parking Swimming pool |
|---|---|
| Amenities | Air Conditioner/Heater Underfloor heating Washer & Dryer |
| Interior/ Exterior | Carpet Flooring |
| Kitchen | Dishwasher Oven Refrigerator |
| Nearby Train Station |
|
|---|