| 賃料 | ¥109,000 / 月 |
|---|---|
| 管理費 | ¥6,000 / 月 |
| 駐車料 | ¥11,000 / 月 |
|---|---|
| 敷金 / 保証金 | ¥0 / 一回限り |
| 礼金 | ¥0 / 一回限り |
|---|---|
| 鍵交換代 | ¥22,000 / 一回限り |
| 消毒料 | ¥20,900 / 一回限り |
|---|---|
| 掃除料 | ¥218,000 / 一回限り |
| 仲介手数料 | ¥119,900 / 一回限り |
|---|---|
| 駐車仲介手数料 | ¥11,000 / 一回限り |
| 更新料 | ¥22,000 / 二年 |
|---|
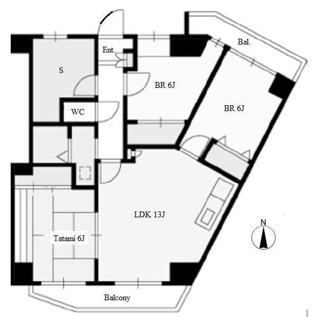
| 間取りタイプ | 3LDK |
|---|---|
| 建物タイプ | アパート |
| 階数 | 13 |
| 階 | 12 |
| 専有面積 | 85.65平米 |
|---|---|
| 建物構造 | RC造 |
| 建築年 | 2000 |
| 部屋数 | 43 |
| 建物 | エレベーター オートロック 駐車場 |
|---|---|
| バス/トイレ | ウォシュレット バス・トイレ別 |
| アメニティ | エアコン・ヒーター ケーブルテレビ |
| 内外装 | フローリング ベランダ・バルコニー |
| 方角 | 南向き |
| 近くの駅 |
|
|---|---|
| ランドマーク |
|