| 賃料 | ¥2,060,000 / 月 | 
|---|---|
| 管理費 | ¥0 / 月 | 
| 再契約料 | 未定 / 一回限り | 
|---|---|
| 保証金 | ¥8,240,000 / 一回限り | 
| 敷金 | ¥0 / 一回限り | 
|---|---|
| 仲介手数料 | ¥2,266,000 / 一回限り | 
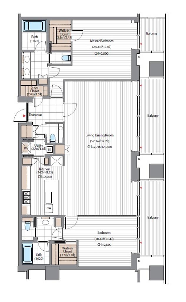
| 間取りタイプ | 2LDK | 
|---|---|
| 建物タイプ | アパート | 
| 階数 | 54 | 
| 階 | 40 | 
| 専有面積 | 155.95平米 | 
|---|---|
| 建物構造 | RC造 | 
| 建築年 | 2022 | 
| 部屋数 | 547 | 
| 建物 | エレベーター オートロック コンシェルジュ ジム プール 駐車場 | 
|---|---|
| アメニティ | エアコン・ヒーター 床暖房 | 
| 内外装 | フローリング | 
| キッチン | 食洗機 | 
| 近くの駅 | 
                    
  | 
                  
|---|