Japan Home Search
Japan Home Search
検索
お気に入り
メインサイトに戻る
EN
🇬🇧
EN
六本木ファーストプラザ 724
ID: 37839
入居可能日 06/22
印刷
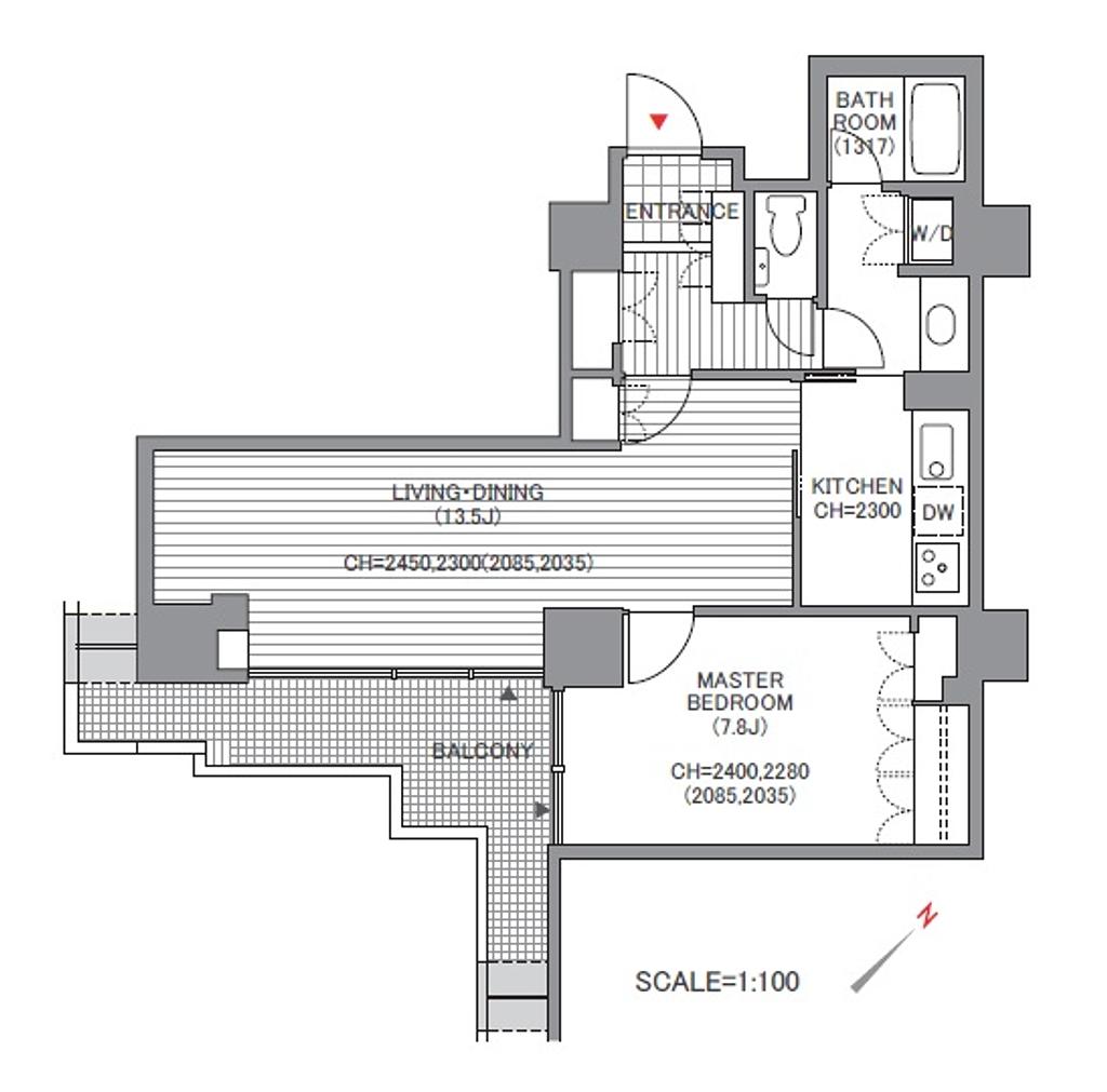
間取り
その他内装
その他内装
Exterior
賃料
¥440,000 / 月
管理費
¥0 / 月
再契約料
未定 / 一回限り
敷金 / 保証金
¥1,760,000 / 一回限り
礼金
¥0 / 一回限り
仲介手数料
¥484,000 / 一回限り
間取りタイプ
1LDK
建物タイプ
アパート
階数
20
階
7
専有面積
58.86平米
建物構造
RC造
建築年
1993
部屋数
90
建物
エレベーター
オートロック
宅配ボックス
アメニティ
エアコン・ヒーター
バス/トイレ
バス・トイレ別
内外装
ベランダ・バルコニー
近くの駅
六本木一丁目
徒歩4分
神谷町
徒歩7分
Powered by Propertyline