Japan Home Search
Japan Home Search
検索
お気に入り
メインサイトに戻る
EN
🇬🇧
EN
アークヒルズフロントタワーRoP 1104
ID: 37852
入居可能日 03/09
印刷
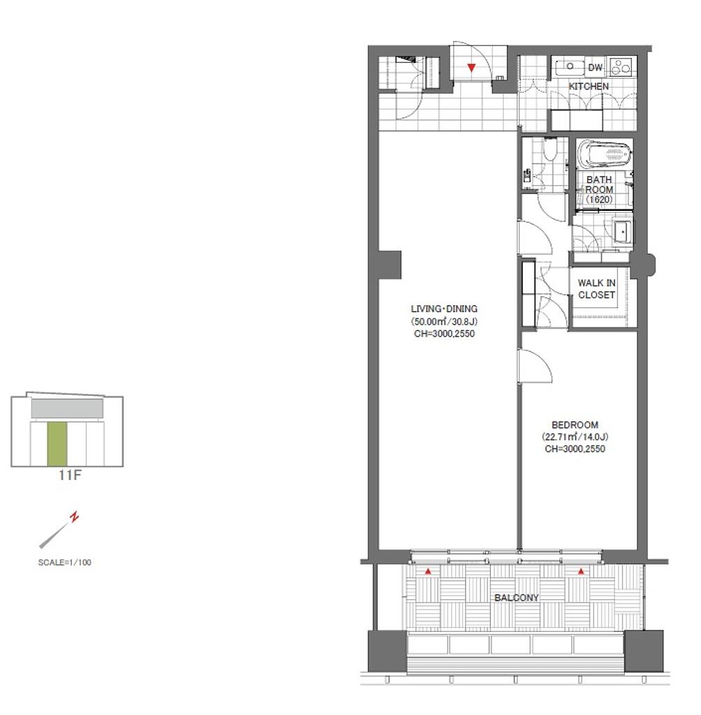
間取り
Exterior
Exterior
賃料
¥1,040,000 / 月
管理費
¥0 / 月
再契約料
未定 / 一回限り
敷金 / 保証金
¥4,160,000 / 一回限り
礼金
¥0 / 一回限り
仲介手数料
¥1,144,000 / 一回限り
間取りタイプ
1LDK
建物タイプ
アパート
階数
0
階
11
専有面積
107.8平米
建物構造
RC造
建築年
2011
部屋数
0
建物
オートロック
駐車場
アメニティ
エアコン・ヒーター
内外装
フローリング
ベランダ・バルコニー
キッチン
食洗機
近くの駅
溜池山王
徒歩3分
六本木一丁目
徒歩5分
赤坂
徒歩7分
Powered by Propertyline