| 賃料 | ¥1,100,000 / 月 |
|---|---|
| 管理費 | ¥0 / 月 |
| 再契約料 | 未定 / 一回限り |
|---|---|
| 敷金 / 保証金 (うち償却) | ¥2,200,000 (¥1,100,000) / 一回限り |
| 礼金 | ¥0 / 一回限り |
|---|---|
| 仲介手数料 | ¥1,210,000 / 一回限り |
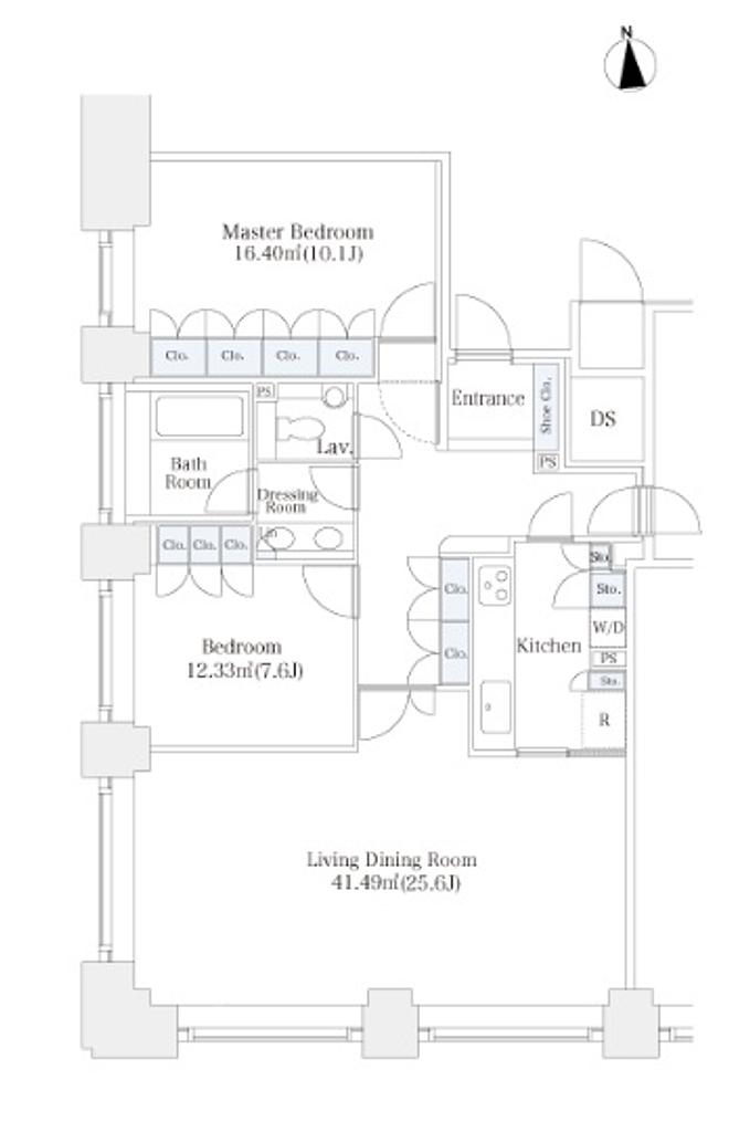
| 間取りタイプ | 2LDK |
|---|---|
| 建物タイプ | アパート |
| 階数 | 35 |
| 階 | 28 |
| 専有面積 | 112.4平米 |
|---|---|
| 建物構造 | 鉄骨造 |
| 建築年 | 2000 |
| 部屋数 | 130 |
| 費用等 | Additional 1 month rent as security deposit to keep pet. | ||
|---|---|---|---|
| 建物 | エレベーター オートロック コンシェルジュ ジム 宅配ボックス |
|---|---|
| アメニティ | エアコン・ヒーター 床暖房 |
| 内外装 | フローリング |
| ペット | ペット相談可 |
| キッチン | 食洗機 |
|
近くの駅
もっと見る |
|
|---|