Japan Home Search
Japan Home Search
検索
お気に入り
メインサイトに戻る
EN
🇬🇧
EN
麻布台ヒルズレジデンスB 617
ID: 38326
入居可能日 11/02
印刷
間取り
外観
ロビー
駐車場
設備
設備
設備
設備
賃料
¥770,000 / 月
管理費
¥0 / 月
再契約料
未定 / 一回限り
敷金 / 保証金
¥3,080,000 / 一回限り
礼金
¥0 / 一回限り
仲介手数料
¥847,000 / 一回限り
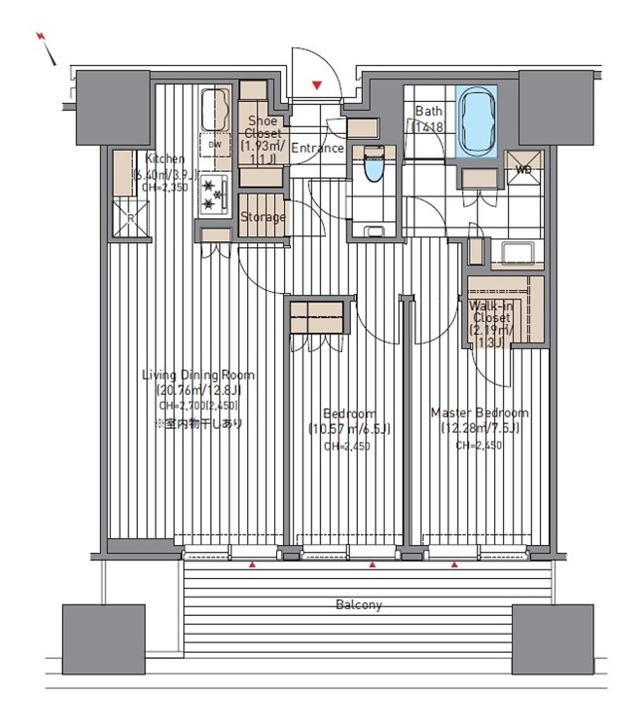
間取りタイプ
2LDK
建物タイプ
アパート
階数
64
階
6
専有面積
78.1平米
建物構造
SRC造
建築年
2025
部屋数
970
建物
エレベーター
オートロック
宅配ボックス
キッチン
ディスポーザー
浄水器
食洗機
アメニティ
床暖房
近くの駅
六本木一丁目
徒歩3分
神谷町
徒歩8分
Powered by Propertyline