| 賃料 | ¥850,000 / 月 |
|---|---|
| 管理費 | ¥0 / 月 |
| 再契約料 | 未定 / 一回限り |
|---|---|
| 敷金 / 保証金 | ¥3,400,000 / 一回限り |
| 礼金 | ¥0 / 一回限り |
|---|---|
| 仲介手数料 | ¥935,000 / 一回限り |
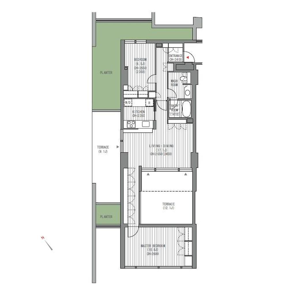
| 間取りタイプ | 2LDK |
|---|---|
| 建物タイプ | アパート |
| 階数 | 4 |
| 階 | 1 |
| 専有面積 | 84.77平米 |
|---|---|
| 建物構造 | RC造 |
| 建築年 | 2001 |
| 部屋数 | 12 |
| 記述 | High quality apaprtment in popular Harajuku & Omotesando area. | ||
|---|---|---|---|
| 建物 | エレベーター オートロック 宅配ボックス |
|---|---|
| バス/トイレ | ウォシュレット |
| アメニティ | エアコン・ヒーター 洗濯乾燥機 |
| キッチン | オーブン 食洗機 |
| 内外装 | フローリング |
|
近くの駅
もっと見る |
|
|---|